
Skizze der Initiative Fahrradstadt, der Stadt zur Anregung © Konrad Schöller
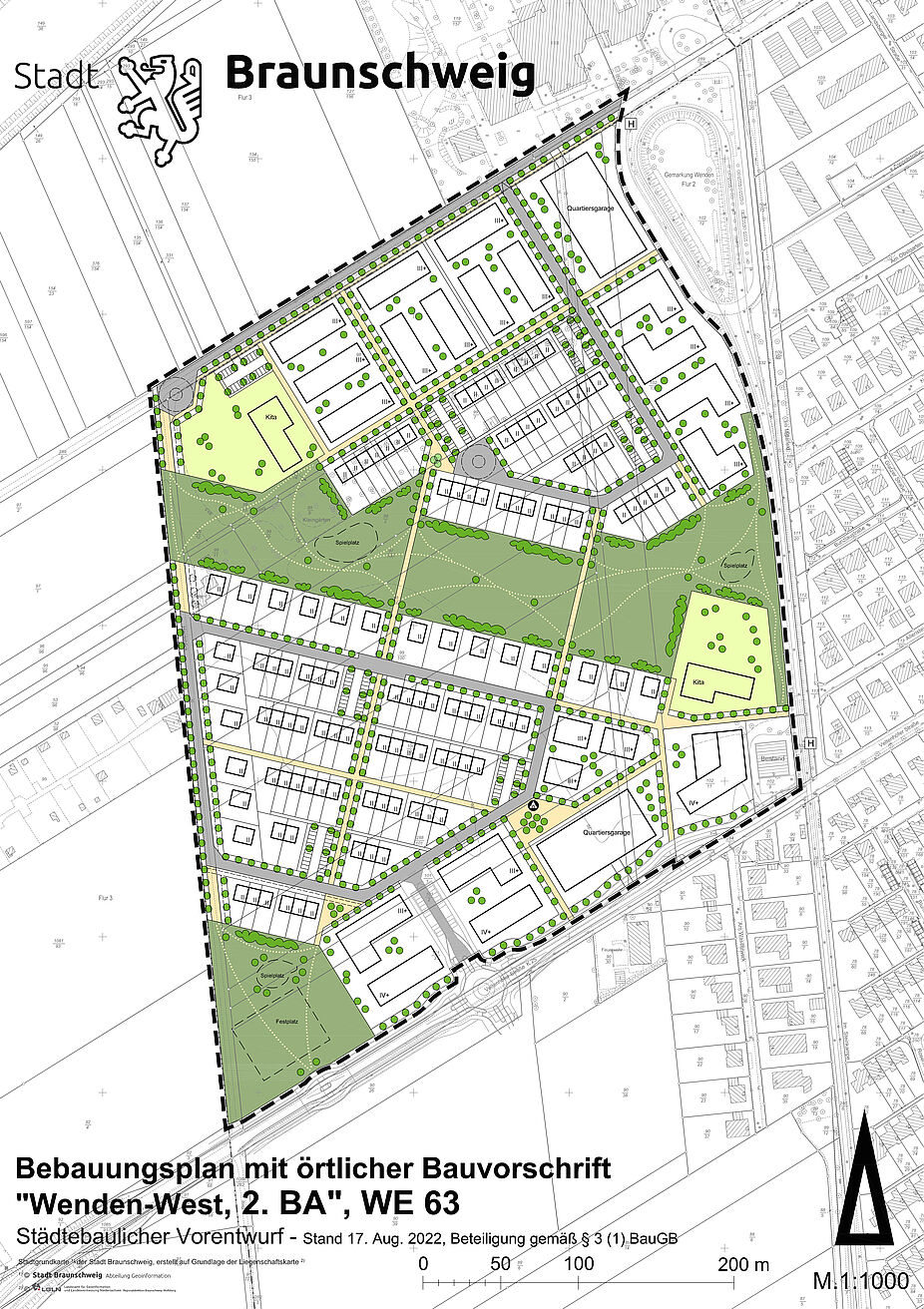
Stellungnahme Baugebiet Wenden-West 2. BA, B-Plan WE63
Der ADFC-Braunschweig hat eine detaillierte Stellungnahme zu den aktuellen Planungen für den zweiten Bauabschnitt des Baugebiets Wenden-West abgegeben.
In dieser Stellungnahme wird in erster Linie auf die Belange des Radverkehrs eingegangen. Es wird eine einladende Fahrradachse gefordert, die das Wohngebiet durchquert und das innerstädtische-Radnetz anschließt. Das Fahrradparken im Quartier und an den Haltestellen der Straßenbahn müssen noch deutlich verbessert werden. Den Anschluss einer Hälfte das neuen Quartiers über die Straße Heideblick lehnt der ADFC ab, da dadurch eine unübersichtliche Situation und Durchgangsverkehr vor den dortigen Schulen und weiteren öffentlichen Einrichtungen erzeugt werden würde. Eine weitere Forderung ist, die Autos aus dem öffentlichen Raum zurückzudrängen und dafür die Quartiersgaragen zu stärken.
Hier die Stellungnahme des ADFC Braunschweig.
Die Initiative Fahrradstadt geht noch einen Schritt weiter und hat eine Alternativskizze mit konzeptionellen Änderung des Bebauungsplans vorgelegt (siehe Bild 1).










